3-к, Художников бульвар, 4 Показать на карте
Новая Усмань
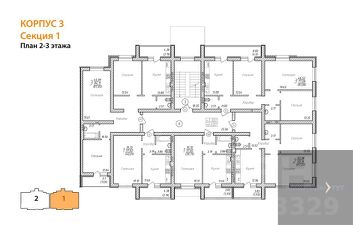
Продаётся 3-комнатная квартира в сданном доме (б-р Художников, 4 (Позиция 12)), срок сдачи: I-кв. 2025, общей площадью 86.86 кв.м., на 8 этаже. О ПРОЕКТЕ ''Инстеп.Бабяково'' это настоящий мини-город с развитой инфраструктурой в окружении ольховой рощи, находящийся всего в 30 минутах от центра Воронежа. Проект сочетает в себе все преимущества загородного жилья при доступном уровне городской инфраструктуры. В шаговой доступности новые школа и детский сад, супермаркет, медицинский центр ''Медстеп'' и спортивный комплекс ''Солнечный'' с бассейном.Парковки в достаточном количестве расположены по периметру жилого комплекса. Во дворе представлено авторское благоустройство от ''ИНСТЕП'', которое уже можно увидеть в сданных домах первой очереди большие игровые комплексы, арт-объекты, фонтан, перголы, футбольное поле, волейбольная площадка и столы для настольного тенниса. Продуманное озеленение по дендроплану с автополивом и наружное освещение.В новых домах в ''Инстеп.Бабяково'' предусмотрены корзины для кондиционеров для каждой квартиры. Концепция застройки обновилась. Теперь акцент сделан на домах переменной этажности от 9 до 14 этажей. Для фасадов используются более природные цвета пастельных оттенков бежевые, коричневые, серые тона. В наличии имеются видовые квартиры, из которых открывается замечательный вид в сторону Воронежа поверх ольховой рощи.Вход в подъезды с уровня земли. Улучшенная отделка на первом этаже в зоне входной группы с отделкой из керамогранита и дизайнерскими светильниками.ОТДЕЛКАВ базовом варианте квартиры сдаются в состоянии предчистовой отделки (с ровными стенами и потолками, установленными розетками и радиаторами, качественной входной дверью и т.д.). Но при этом можно приобрести жилую площадь уже с чистовой отделкой, выбирая из двух вариантов ''Комфорт'' или ''Бизнес''. В санузлах квартир будет установлена вся необходимая сантехника, а стены и пол отделаны керамогранитом различных цветовых оттенков, на полу в комнатах уложен ламинат, стены оклеены качественными светлыми обоями под покраску, поставлены межкомнатные двери.ПЛАНИРОВКИВ новостройке ''Инстеп.Бабяково'' представлены уникальные планировки. Большинство из них евроформата, с большой кухней-гостиной. Но есть и квартиры с мастер-спальней, с двумя лоджиями, с большим санузлом, или с окнами на две стороны.АКЦИИ И УСЛОВИЯ ПРИОБРЕТЕНИЯКвартиры от застройщика ''ИНСТЕП'' подходят под программы ''Семейная ипотека'' и ИТ-ипотека. Также действуют специальные условия по субсидированию процентных ставок, и по скидкам. Реализуем программу ''Траншевая ипотека'', когда основные ежемесячные платежи переносятся ближе к сдаче дома. Подробную информацию про квартиры и про действующие акции можно узнать в отделе продаж ''ИНСТЕП''. Менеджеры отдела продаж с удовольствием Вас проконсультируют и помогут.
86 м2
8 / 10 этаж
Панель
- Показать контакты
- Добавить в избранное
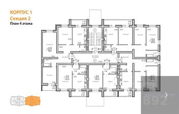
86 м2
8 / 10 этаж
Панель
9 684 890
111 500 /м2
Новостройка,
дом сдан
дом сдан
