Если цена в объявлении изменится, мы сразу сообщим вам об этом на электронную почту.
Нажимая «Подписаться», вы соглашаетесь с правилами.
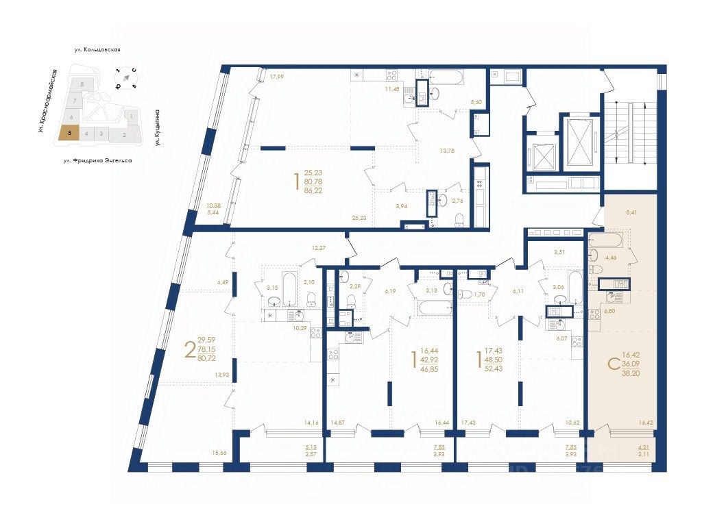
продам 1-к, Фридриха Энгельса, 8810 417 598 ₽
24 апр 2025
Дата публикации объявления
Обн. сегодня
Дата обновления объявления
Спецпредложение
Турбо x8
272 712 ₽/м²
Чистая продажа
Термин "Чистая продажа" означает, что в квартире никто не прописан или
есть куда выписаться и вывезти вещи. Это лучший вариант для покупателя.
Вероятность срыва сделки минимальна.
Квартира
Общая площадь38,2 м2
Жилая площадь16,4 м2
Кухня6,8 м2
Тип собственностисвидетельство о праве собственности
''Дом на Фридриха Энгельса'' престижная локация с исключительной инфраструктурой. Особая атмосфера исторического центра.
В жилом доме предусмотрено 8 секций, 309 эксклюзивных квартир по технологии монолитного домостроения
- Переменная этажность: 6 17 - Площадь квартир: от 29,89 до 127,29 кв. м - Площадь террас: от 2,24 до 99,34 кв.
''Дом на Фридриха Энгельса'' престижная локация с исключительной инфраструктурой. Особая атмосфера исторического центра.
В жилом доме предусмотрено 8 секций, 309 эксклюзивных квартир по технологии монолитного домостроения
- Переменная этажность: 6 17 - Площадь квартир: от 29,89 до 127,29 кв. м - Площадь террас: от 2,24 до 99,34 кв. м - Высота потолков в квартирах: 3,1 м - Свободные планировки, евроформат - Эксклюзивные решения (мастер-спальня с собственным выходом на террасу, ванная комната с видом на город) - Авторская архитектура - Концептуальное благоустройство, архитектурная подсветка - Премиальное лобби - Дизайнерские бесшумные лифты Meteor - Закрытая территория - Высокий уровень безопасности, сервиса и приватности - Подземный 2-х уровневый паркинг (270 машино-мест) - Кладовые - Ритейл на 1 этажах
Трейд-ин.
Действующие ипотечные ставки и акции уточняйте в офисе продаж застройщика.
Услуга собственного менеджера по ипотечному кредитованию - удобная опция для клиентов компании. Специалисты обеспечат вам комфортные условия получения кредита и будут рядом на каждом этапе, возьмут на себя все взаимодействие с банком.
Квартира от застройщика!
Строительная компания ''ВЫБОР'' предлагает купить однокомнатную квартиру в ''Дом на Фридриха Энгельса'' в Воронеже.
Успей приобрести квартиру по выгодной цене!
Строительная компания ''ВЫБОР'' — один из ведущих застройщиков в Центрально-Черноземном регионе.