сдам универсальное помещение, Владимира Невского, 38б800 ₽ в месяц
10 июля 2025
Дата публикации объявления
Обн. вчера
Дата обновления объявления
5
Количество просмотров (+ просмотры за сегодня)
800 ₽/м² в месяц
Параметры
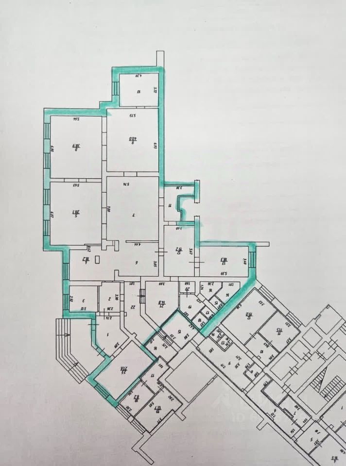
Общая площадь1 м2
Этаж1
Отдельный входесть
Назначение помещения
магазин, выставочный зал, для работы с клиентами
Коммерческое помещение свободного назначения площадью 351.2 кв. м расположено в центре Коминтерновского района Воронежа, в зоне высокой деловой и пешеходной активности. Объект находится на первом этаже многоквартирного жилого дома с отдельным входом, что обеспечивает удобство для посетителей и бесперебойную работу бизнеса. Выгодное расположение в густонаселенном квартале с развитой инфраструктурой гарантирует стабильный клиентопоток — в шаговой доступности находятся жилые комплексы, офисные здания, торговые центры, кафе и остановки общественного транспорта. Перед зданием организована парковочная зона , что решает вопрос логистики для клиентов и сотрудников.
Коммерческое помещение свободного назначения площадью 351.2 кв. м расположено в центре Коминтерновского района Воронежа, в зоне высокой деловой и пешеходной активности. Объект находится на первом этаже многоквартирного жилого дома с отдельным входом, что обеспечивает удобство для посетителей и бесперебойную работу бизнеса. Выгодное расположение в густонаселенном квартале с развитой инфраструктурой гарантирует стабильный клиентопоток — в шаговой доступности находятся жилые комплексы, офисные здания, торговые центры, кафе и остановки общественного транспорта. Перед зданием организована парковочная зона , что решает вопрос логистики для клиентов и сотрудников.
В настоящее время здесь успешно работают несколько арендаторов, долгое время ведущих бизнес без смены локации, что подтверждает привлекательность места. Планировка функциональна и позволяет зонировать пространство под разные форматы — розничную торговлю, оказание услуг, офис или мини-производство. Высота потолков 2,5 метров, проведены все необходимые коммуникации, включая электричество 60кВт , водоснабжение, вентиляцию и систему пожаротушения. Состояние помещения — хорошее, возможен косметический ремонт по желанию нового собственника.
Район отличается развитой транспортной инфраструктурой: рядом проходят основные магистрали, соединяющие центр с другими районами города, а также есть удобные подъезды для грузового транспорта. В радиусе 500 метров расположены банки, аптеки, продуктовые магазины и образовательные учреждения, что повышает проходимость локации. Объект подходит как для инвестиций с целью сдачи в аренду,