Если цена в объявлении изменится, мы сразу сообщим вам об этом на электронную почту.
Нажимая «Подписаться», вы соглашаетесь с правилами.
продам 3-к квартира10 291 249 ₽
5 авг
Дата публикации объявления
Обн. сегодня
Дата обновления объявления
Спецпредложение
Турбо x8
127 367 ₽/м²
Чистая продажа
Термин "Чистая продажа" означает, что в квартире никто не прописан или
есть куда выписаться и вывезти вещи. Это лучший вариант для покупателя.
Вероятность срыва сделки минимальна.
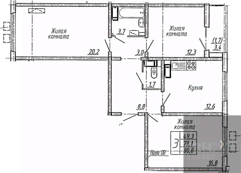
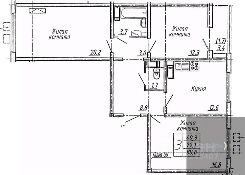
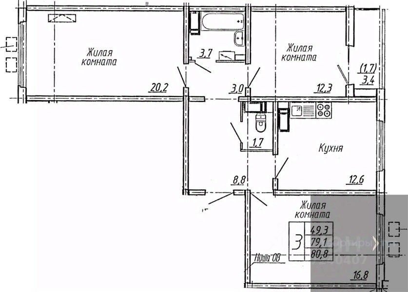
Квартира
Общая площадь80,8 м2
Жилая площадь49,3 м2
Кухня12,6 м2
Тип собственностидоговор долевого участия
Дом
Срок сдачи4 кв. 2026 г.
Этаж2 из 19
Материал домапанель
Квартира: 3 к 80,80 кв.м., 2 этаж в комплексе Яблоневые сады (ДСК), 1 очередь, корп.9, сдача: 4кв. , этажей: 19, адрес Воронеж г., Ломоносова ул., д. 129, Застройщик: ДСК.