Если цена в объявлении изменится, мы сразу сообщим вам об этом на электронную почту.
Нажимая «Подписаться», вы соглашаетесь с правилами.
продам 3-к квартира10 456 197 ₽
5 авг
Дата публикации объявления
Обн. вчера
Дата обновления объявления
1
Количество просмотров (+ просмотры за сегодня)
Спецпредложение
Турбо x8
128 140 ₽/м²
Чистая продажа
Термин "Чистая продажа" означает, что в квартире никто не прописан или
есть куда выписаться и вывезти вещи. Это лучший вариант для покупателя.
Вероятность срыва сделки минимальна.
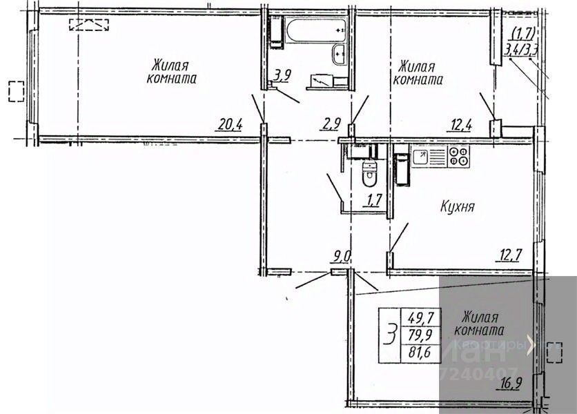
Квартира
Общая площадь81,6 м2
Жилая площадь49,7 м2
Кухня12,7 м2
Тип собственностидоговор долевого участия
Дом
Срок сдачи4 кв. 2026 г.
Этаж14 из 19
Материал домапанель
Квартира: 3 к 81,60 кв.м., 14 этаж в комплексе Яблоневые сады (ДСК), 1 очередь, корп.9, сдача: 4кв. , этажей: 19, адрес Воронеж г., Ломоносова ул., д. 129, Застройщик: ДСК.