Если цена в объявлении изменится, мы сразу сообщим вам об этом на электронную почту.
Нажимая «Подписаться», вы соглашаетесь с правилами.
продам 1-к, Пирогова, 72а5 300 000 ₽
29 ноя
Дата публикации объявления
Обн. сегодня
Дата обновления объявления
1
Количество просмотров (+ просмотры за сегодня)
143 243 ₽/м²
Чистая продажа
Термин "Чистая продажа" означает, что в квартире никто не прописан или
есть куда выписаться и вывезти вещи. Это лучший вариант для покупателя.
Вероятность срыва сделки минимальна.
ОДНОКОМНАТНАЯ КВАРТИРА ВАШЕЙ МЕЧТЫ: создайте интерьер под себя!
БОНУС В КОНЦЕ
Современный кирпично-монолитный дом 2015 года постройки. Надежная конструкция, теплые стены и собственная котельная — залог комфорта и экономии на коммунальных платежах.
Закрытая и благоустроенная территория с парковочными местами и детской площадкой. Двор тихий, ухоженный и безопасный!
Ведется видео-наблюдение во дворе и в подъезде.
Несколько удобных подъездов и выездов с разных сторон по хорошим дорогам.
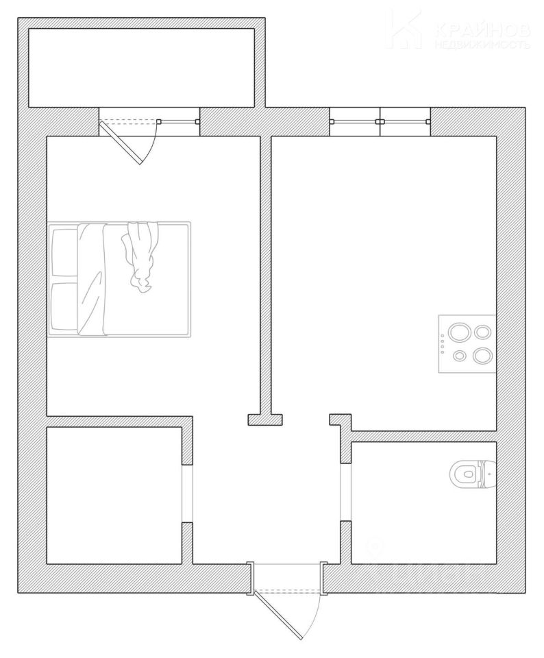
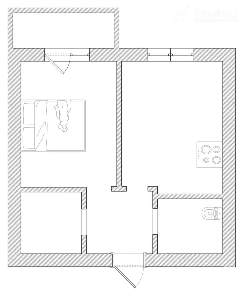
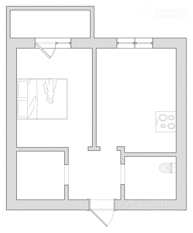
Квартира - 37 м2
Кухня - 10 кв.м
Комната - 17 м2 с выходом на лоджию
В черновой отделке — отличная возможность реализовать собственный дизайн-проект.
ОДНОКОМНАТНАЯ КВАРТИРА ВАШЕЙ МЕЧТЫ: создайте интерьер под себя!
БОНУС В КОНЦЕ
Современный кирпично-монолитный дом 2015 года постройки. Надежная конструкция, теплые стены и собственная котельная — залог комфорта и экономии на коммунальных платежах.
Закрытая и благоустроенная территория с парковочными местами и детской площадкой. Двор тихий, ухоженный и безопасный!
Ведется видео-наблюдение во дворе и в подъезде.
Несколько удобных подъездов и выездов с разных сторон по хорошим дорогам.
Квартира - 37 м2
Кухня - 10 кв.м
Комната - 17 м2 с выходом на лоджию
В черновой отделке — отличная возможность реализовать собственный дизайн-проект.
Продуманная планировка:
•вместительный коридор
•отдельная гардеробная
•совмещенный санузел
•светлая жилая комната с выходом на лоджию •просторная кухня.
Район тихий и уютный, но с быстрым доступом к центру города: всего 10 минут на машине или 25 минут пешком
Удобная транспортная развязка с направлением во все стороны города!
Вокруг 3 популярных остановки общественного транспорта с активным движением
Много прогулочных и зон отдыха с лавочками и широкими тротуарами
Много детских и спортивных площадок
Рядом красивый частный сектор, где можно наблюдать цветение весны
Рядом магазины, аптеки, кафе, кулинарии, автоцентры, заправки и ТЦ ''Небо''
Все удобства — под рукой, при этом район остается спокойным и тихим, идеальным для комфортной жизни.
ОТЛИЧНЫЙ ВАРИАНТ ДЛЯ СОХРАНЕНИЯ И ПРЕУМНОЖЕНИЯ ВАШИХ ДЕНЕЖНЫХ СРЕДСТВ
* Расположение подходит для сдачи квартиры в аренду *
Рядом находится новый квартал и будут ещё строиться новые, что качественно продолжит дальнейшее развитие района и повысит стоимость недвижимости в этой местности, а ваш двор останется закрытым и тихим!
Добавьте объявление в избранное, чтобы не потерять этот вариант!
Звоните и принимайте выгодное решение о покупке именно этой квартиры