Если цена в объявлении изменится, мы сразу сообщим вам об этом на электронную почту.
Нажимая «Подписаться», вы соглашаетесь с правилами.
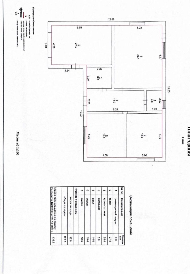
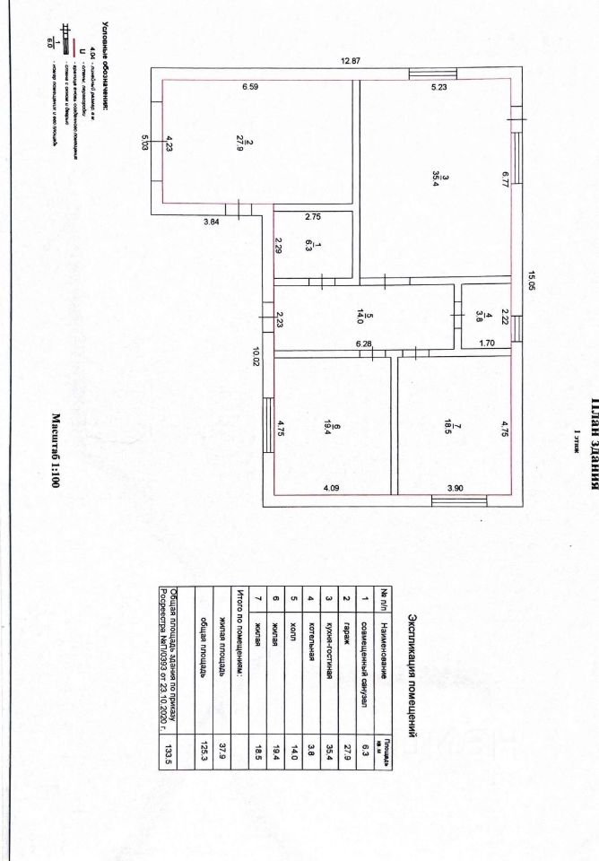
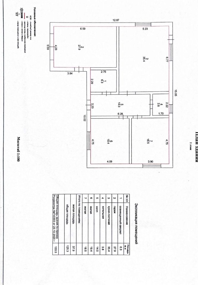
продам дом, Северная10 200 000 ₽
17 янв
Дата публикации объявления
Обн. 17 янв
Дата обновления объявления
2
Количество просмотров (+ просмотры за сегодня)
76 404 ₽/м²
Чистая продажа
Термин "Чистая продажа" означает, что в квартире никто не прописан или
есть куда выписаться и вывезти вещи. Это лучший вариант для покупателя.
Вероятность срыва сделки минимальна.