Если цена в объявлении изменится, мы сразу сообщим вам об этом на электронную почту.
Нажимая «Подписаться», вы соглашаетесь с правилами.
продам дом, Кооперативная9 400 000 ₽
22 янв
Дата публикации объявления
Обн. вчера
Дата обновления объявления
95 142 ₽/м²
Чистая продажа
Термин "Чистая продажа" означает, что в квартире никто не прописан или
есть куда выписаться и вывезти вещи. Это лучший вариант для покупателя.
Вероятность срыва сделки минимальна.
Этажей1
Площадь участка6 соток
Общая площадь98,8 м2
ЭлектричествоЕсть
Газоснабжениецентральное
Продаю одноэтажный Дом 98,8 м2 2025 г. постройки на 6 сотках для круглогодичного проживания в селе Староживотинное, ул. Кооперативная, по главной, асфальтированной улице, в 2 минутах при съезде, или в 22 км. от Воронежа. Дом находится рядом с хвойными деревьями, у многих на участки сосны и хвойный лес. Вокруг застройка соседей для жизни, все живут. Несколько подъездов к дому. По дороге торговый центр, магазины, всё в шаговой доступности.
Для любителей Коттеджных поселков, чистого воздуха, спокойствия и уединений.
Дом поставлен на кадастр. Кадастровый номер участка 36:25:6981000:307 6 соток.
Дом 98,8 кв.м. одноэтажный в глубину участка.
Продаю одноэтажный Дом 98,8 м2 2025 г. постройки на 6 сотках для круглогодичного проживания в селе Староживотинное, ул. Кооперативная, по главной, асфальтированной улице, в 2 минутах при съезде, или в 22 км. от Воронежа. Дом находится рядом с хвойными деревьями, у многих на участки сосны и хвойный лес. Вокруг застройка соседей для жизни, все живут. Несколько подъездов к дому. По дороге торговый центр, магазины, всё в шаговой доступности.
Для любителей Коттеджных поселков, чистого воздуха, спокойствия и уединений.
Дом поставлен на кадастр. Кадастровый номер участка 36:25:6981000:307 6 соток.
Дом 98,8 кв.м. одноэтажный в глубину участка.
Установлено:
- Дверь с терморазрывом Torex на гарантии,
- окна Rehau 60 rese на гарантии, над окнами установлены армированные перемычки.
Фундамент плита, толщина 20 см, двойная вязка арматуры 8,10 и 12 с шагом 20 см. Бетон М300 на граните.
Стены газоблок ВКБлок PREMIUM 200х300х625 D500 В2,5 F50 с облицовочным кирпичом ''под старину'' (кладка под плетёную корзину)
Армирование стен в 2 ряда, каждый 4 ряда.
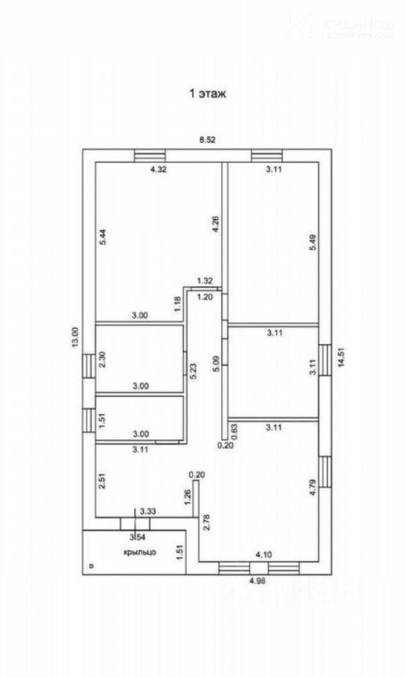
С крыльца вход в коридор, прямо бойлерная, можно установить 2 санузел,
далее ванная с санузлом, дальше большая спальня с гардеробной (20 кв.м.),
по второй стороне 2 спальни (17,5 и 10)
Кухня гостиная 17 кв.м.
Высота 3 м.
Крыша металлочерепица Grand Line.
Проведен газ.
Планируется теплый пол, штукатурка, шпаклёвка. Разведение электричества под клиента.
Продает застройщик. Возможна чистовая, ремонт под ключ.
Дом без ипотек и обременений. Чистая продажа от физического лица.