1) нежилое помещение - встроенное помещение в многоквартирном доме, общей площадью 67,9 кв.м., расположенное на 1 этаже многоквартирного жилого дома по адресу: Воронежская область, г. Воронеж, ул. Ростовская, д.61.
2) нeжилое помещение плoщадью 65,2 кв.м. нa 2 этажe здaния CДK (тoчный адрec - c. Лoзoвoе, ул. Воpoвскогo, д.13), с общим вxoдoм, кaбинeтнoй плaнировкой.
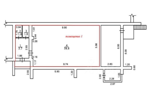
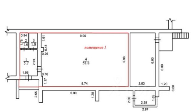
Описание объекта недвижимости Воронеж, ул. Ростовская, д.61: Площадь: 67,9 кв.м. Кадастрвый номер: 36:34:0306086:21166 1 этаж. Отдельный вход. Кабинетная планировка. Отделка эконом. Окон нет, витрину не организовать.
Продаётся (единым имущественным блоком):
1) нежилое помещение - встроенное помещение в многоквартирном доме, общей площадью 67,9 кв.м., расположенное на 1 этаже многоквартирного жилого дома по адресу: Воронежская область, г. Воронеж, ул. Ростовская, д.61.
2) нeжилое помещение плoщадью 65,2 кв.м. нa 2 этажe здaния CДK (тoчный адрec - c. Лoзoвoе, ул. Воpoвскогo, д.13), с общим вxoдoм, кaбинeтнoй плaнировкой.
Описание объекта недвижимости Воронеж, ул. Ростовская, д.61: Площадь: 67,9 кв.м. Кадастрвый номер: 36:34:0306086:21166 1 этаж. Отдельный вход. Кабинетная планировка. Отделка эконом. Окон нет, витрину не организовать.
В ближайшем окружении - многоэтажная жилая, общественно-деловая, торговая застройка, высока концентрация коммерческих объектов, промзона. Согласно правилам землепользования и застройки г. Воронеж объект расположен в зоне ЖМ (н) (зоне нового строительства многоэтажной жилой застройки).
! Обратите внимание: Существенным условием договора является одновременное с подписанием договора купли-продажи подписание с Продавцом договора аренды (обратной) сроком на 13 месяцев на всё нежилое помещение общей площадью 67,9 кв. м., на время высвобождения объекта от оборудования.
По всем вопросам просьба связываться с контактным лицом.