Если цена в объявлении изменится, мы сразу сообщим вам об этом на электронную почту.
Нажимая «Подписаться», вы соглашаетесь с правилами.
продам 3-к, Ямное8 673 310 ₽
26 фев
Дата публикации объявления
Обн. вчера
Дата обновления объявления
Топ
Турбо x2
102 400 ₽/м²
Чистая продажа
Термин "Чистая продажа" означает, что в квартире никто не прописан или
есть куда выписаться и вывезти вещи. Это лучший вариант для покупателя.
Вероятность срыва сделки минимальна.
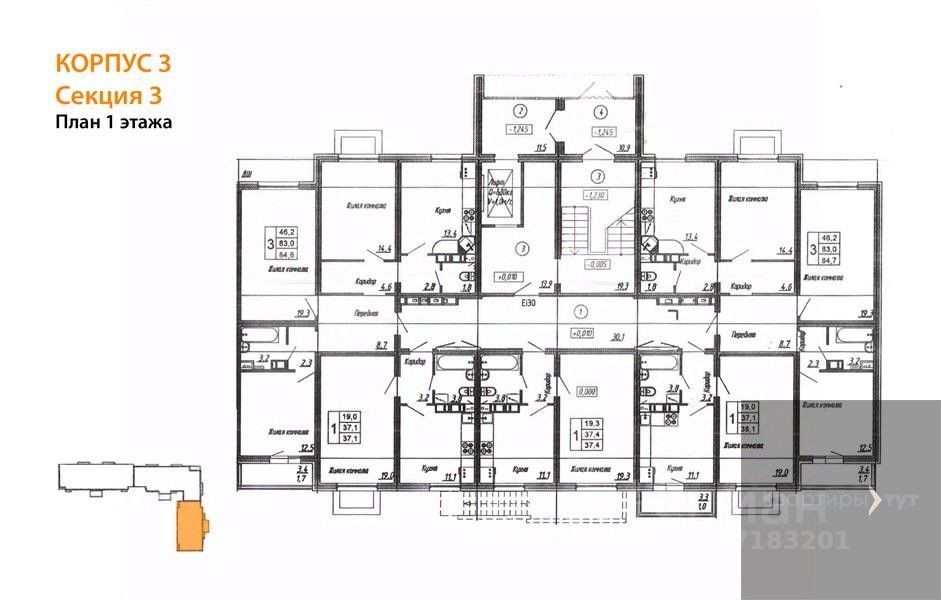
Квартира
Общая площадь84,7 м2
Жилая площадь46,2 м2
Кухня13,4 м2
Тип собственностидоговор долевого участия
Дом
Срок сдачи1 кв. 2027 г.
Этаж1 из 7
Материал домапанель
Квартира: 3 к 84,70 кв.м., 1 этаж в комплексе Счастье, 2 очередь, корп.3, сдача: 1кв. , этажей: 7, адрес Ямное село, Проселочная ул., , Застройщик: ВЫБОР.