Дом, Сосновая, 1 Показать на карте
Александровка
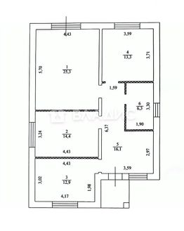
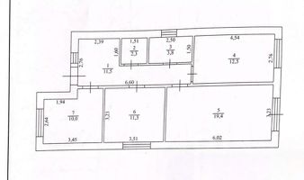
Описание:Предлагается к продаже просторный и уютный дом, окруженный величественными соснами. Этот дом станет идеальным местом для жизни и отдыха всей семьи.Основные характеристики:Светлая просторная кухня-гостиная 30м2 с возможностью выхода на террасу, просторные комнаты, бойлерная-постирочная, 2 санузлаВанна и коридор отделаны плиткойОбщая площадь: 256м2Количество этажей: 1(есть возможность доделать полноценный мансардный этаж). Также имеется просторный гараж-подвал на -1этажеМатериал: Кирпич/блокиИнфраструктура: асфальтированная дорога по всей улице, втч. заезд к дому, напротив дома асфальтированная бесплатная парковка (до 10 машин).Также около дома в 10 м закрытая детская площадка, футбольное/баскетбольное поле (зимой заливают бесплатный каток для жителей улицы), троллей для катания детей, летний кинотеатр, все это в 1 мин от дома. Очень дружные соседи. В шаговой доступности (10 мин. ) остановка, магазин.Цена: 12 480 000 руб.Приезжайте и сами все увидите!Не упустите шанс стать владельцем этого прекрасного дома! Звоните прямо сейчас для просмотра и дополнительных подробностей.Просьба риэлторов и агентства не беспокоить!!!
256 м2
1 этаж
Бетонные блоки
- Показать контакты
- Добавить в избранное
256 м2
1 этаж
Бетонные блоки
12 480 000
48 750 /м2
