1-к, Новая Усмань Показать на карте
Новая Усмань
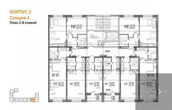
Продаётся студия в строящемся доме (Поз. 3), срок сдачи: IV-кв. 2027, общей площадью 33.91 кв.м., на 4 этаже. Новый жилой комплекс от Специализированного застройщика ООО ''Строительная компания ''Фрегат'' расположен по адресу: с. Новая Усмань, по ул. Полевая.
33 м2
4 / 8 этаж
Кирпич - монолит
- Показать контакты
- Добавить в избранное
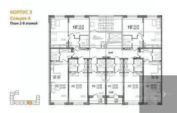
33 м2
4 / 8 этаж
Кирпич - монолит
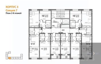
3 882 695
114 500 /м2
Новостройка,
IV-2027
IV-2027
