3-к, Карла Маркса, 67/2 Показать на карте
Центральный район
Воронеж
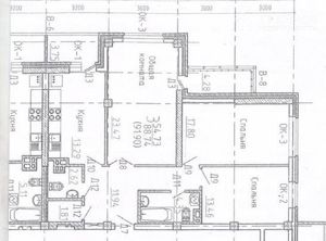
Арт. 117121210 ТРЁХКОМНАТНАЯ КВАРТИРА В ЧЕРНОВОЙ ОТДЕЛКЕ С ВЕЛИКОЛЕПНЫМ ВИДОМ НА ГОРОД И ЦЕНТР.ОБЩАЯ ПЛОЩАДЬ 81 кв.м.Покупка квартиры в черновой отделке выгодна благодаря более низкой стоимости, полной свободе в планировке и выборе материалов, а также возможности контролировать качество работ и устранять недостатки на раннем этапе. Этот вариант подходит тем, кто готов потратить время и средства на ремонт по своему вкусу и предпочитает создавать уникальный интерьер.Вариант планировочного решения:-Прихожая 11,59 кв.м.-Кухня-гостиная 23,18 кв.м.-Спальная комната 11,87 кв.м.-Лоджия 5,68 кв.м.-Ванная комната 8,85 кв.м.-Детская комната 18,94 кв.м.-Гостевой туалет 3,98 кв.м.-Гардеробная.Есть дизайнерский и архитектурные проекты, включая схемы: обмеров квартиры, возводимых перегородок, указанием электрики, расположение теплого пола и т.д.''СОЛНЕЧНЫЙ ОЛИМП'' создан специально для деловых и активных людей, ценящих комфорт и близость к центру города.Огороженная территория полностью благоустроена. Озеленение многочисленными деревьями и кустарниками создает атмосферу гармонии и спокойствия.Фасады, обращенные к исторической части города, выполнены в стилистике 30-50-ых годов, а их художественная подсветка подчеркивает красоту и величие архитектуры.На территории осуществляется круглосуточная охрана, работает КПП и служба консьерж.Здание оборудовано современными, скоростными и бесшумными лифтами.Предусмотрены наземная и подземная парковки, лифты из которой ведут прямо в подъезды.У жителей есть возможность посетить: Xfit - лидер в сегментах ''люкс'' и ''премиум'', представляющий полный комплекс фитнес и wellness-услуг с бассейнами и SPA-салоном, возможность расслабиться и отдохнуть в популярном ресторане ''Чайхона 1'', уютно и вкусно провести время в кафе-кондитерской ''Волконский''.КВАРТИРА В ЦЕНТРЕ ГОРОДА ВСЕГДА В ЦЕНЕ.Преимуществом являются:-Престижность проживания в элитном районе.-Надёжность инвестиций (квартиру в центре всегда легче продать или сдать в аренду).-Транспортная доступность.-Инфраструктура: магазины, школы, детсады, поликлиники, культурные учреждения и т. д.-Чистота и комфорт.-Возможность добраться пешком до большинства нужных мест в центре в час пик. Обременений нет.Свободная продажа.Помощь в оформлении ипотеки.Быстрый выход на сделку.Юридическое сопровождение.Рассмотрим различные варианты расчета.ЗВОНИТЕ, готовы дать всю дополнительную информацию и обеспечим просмотр в удобное время.#Куплю_квартиру, #куплю_трехкомнатную_квартиру_в_центре, #куплю_квартиру_в_Воронеже, #трёхкомнатная_квартира_в_центре, #квартира_в_черновой_отделке, #куплю_квартиру_в_солнечном олимпе, #куплюквартиру
81 м2
17 / 24 этаж
Монолит
- Показать контакты
- Добавить в избранное
81 м2
17 / 24 этаж
Монолит
28 000 000
345 679 /м2
