2-к квартира Показать на карте
Центральный район
Воронеж
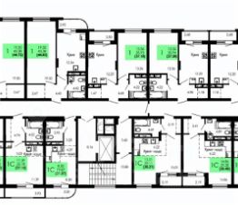
Продаётся 2-комнатная квартира в строящемся доме (Дом 1, дом 2), срок сдачи: I-кв. 2027, общей площадью 53.29 кв.м., на 6 этаже. Новый жилой комплекс от группы компаний ''Проект Инвест'' расположен по адресу: г. Воронеж, по ул. Шишкова.
53 м2
6 / 9 этаж
Кирпич - монолит
- Показать контакты
- Добавить в избранное
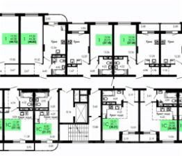
53 м2
6 / 9 этаж
Кирпич - монолит
7 727 050
145 000 /м2
Новостройка,
I-2027
I-2027
