1-к квартира Показать на карте
Центральный район
Воронеж
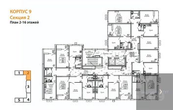
Квартира: 1 к 38,30 кв.м., 14 этаж в комплексе Яблоневые сады (ДСК), 1 очередь, корп.9, сдача: 2кв. , этажей: 19, адрес Воронеж г., Ломоносова ул., д. 129, Застройщик: ДСК.
38 м2
14 / 19 этаж
Панель
- Показать контакты
- Добавить в избранное
38 м2
14 / 19 этаж
Панель
5 669 248
148 022 /м2
Новостройка,
II-2027
II-2027
