3-к квартира Показать на карте
Центральный район
Воронеж
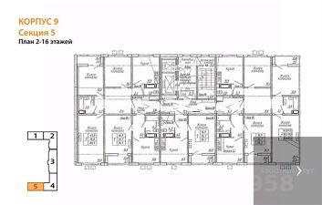
Квартира: 3 к 80,50 кв.м., 10 этаж в комплексе Яблоневые сады (ДСК), 1 очередь, корп.9, сдача: 2кв. , этажей: 19, адрес Воронеж г., Ломоносова ул., д. 129, Застройщик: ДСК.
80 м2
10 / 19 этаж
Панель
- Показать контакты
- Добавить в избранное
80 м2
10 / 19 этаж
Панель
10 315 385
128 141 /м2
Новостройка,
II-2027
II-2027
