1-к квартира Показать на карте
Центральный район
Воронеж
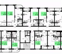
Продаётся 1-комнатная квартира в строящемся доме (Дом 1, дом 2), срок сдачи: I-кв. 2027, общей площадью 34.44 кв.м., на 3 этаже. Новый жилой комплекс от группы компаний ''Проект Инвест'' расположен по адресу: г. Воронеж, по ул. Шишкова.
34 м2
3 / 9 этаж
Кирпич - монолит
- Показать контакты
- Добавить в избранное
34 м2
3 / 9 этаж
Кирпич - монолит
5 097 120
148 000 /м2
Новостройка,
I-2027
I-2027
