2-к, Цимлянская, 10в Показать на карте
Левобережный район
Воронеж
Жилой комплекс ''Ю'' расположен в 15 минутах езды от центра города, в районе со сложившейся, максимально развитой инфраструктурой. В пешей доступности от ЖК расположены общеобразовательные школы, детские сады, школа искусств, спортивные комплексы для занятий различными видами спорта детей и взрослых. Для прогулок на свежем воздухе рядом есть прекрасный зелёный парк ''Южный'', в котором расположен новый, современный плавательный бассейн ''Волна''.Современные и комфортные дома:Стильные современные фасадыПросторный и светлый дворПлощадки для игр и спортаЗоны для отдыха и общения15-этажные домаВ доме 2 подъездаВ доме 4 бесшумных лифтаКвартиры от 35 до 109 кв.м.Технология строительства:Холодное и горячее централизованное водоснабжениеФундамент - монолитная плитаКаркас - сборно-монолитныйНаружные стены - газосиликат 300 мм с утеплителемНаружная отделка - тонкослойная штукатуркаКровля направляемая рулоннаяВысота потолков 2,65 мВнутренние перегородки: газо-силикат, кирпичКонцепция:Современные дома с высоким уровнем отделки фасадов, подъездов и мест общего пользованияДемократичное ценообразованиеХорошо развитая инфраструктураБезопасная покупка через счета ЭСКРОУБольшой наземный паркинг15 мин. до центраРазличные варианты отделки квартир
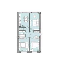
58 м2
10 / 15 этаж
Монолит
- Показать контакты
- Добавить в избранное
58 м2
10 / 15 этаж
Монолит
9 371 200
160 000 /м2
Новостройка,
дом сдан
дом сдан
