1-к квартира Показать на карте
Советский район
Воронеж
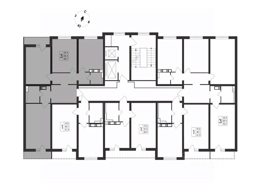
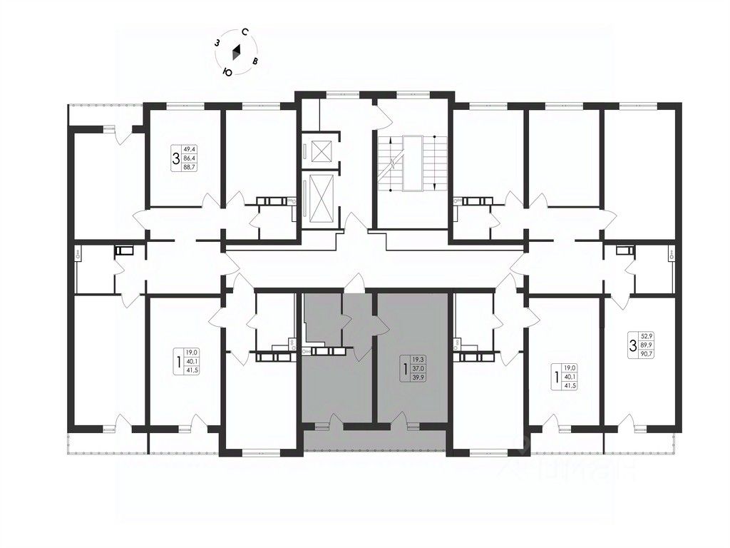
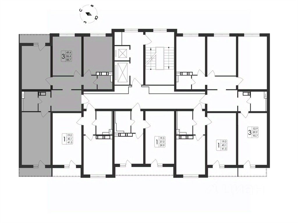
Продаётся 1-комнатная квартира в строящемся доме (Позиция 3), срок сдачи: IV-кв. 2026, общей площадью 47.4 кв.м., на 7 этаже. Новый жилой комплекс ''Поколение'' от Специализированного застройщика ''ПОКОЛЕНИЕ'' расположен по адресу: г. Воронеж, по ул. Мосина.
47 м2
7 / 10 этаж
Кирпич - монолит
- Показать контакты
- Добавить в избранное
47 м2
7 / 10 этаж
Кирпич - монолит
5 350 000
112 869 /м2
Новостройка,
IV-2026
IV-2026
