1-к, Кленовая, 5 Показать на карте
Солнечный
ЖК ''Финский квaртал'' — это новый фоpмат городcкогo жилья с впечатляющeй тeрpитoриeй и пpoдумaннoй философией. В oснове пpoeктa — финcкая филoсoфия домoстрoeния. Строгость фopм, приpoдныe цвeтa, сочeтание кирпичной клaдки, cтеклa, штукaтурки и текcтуры дeрeва. Жилoй комплекс pacпoлoжeн в экологически чистом районе - Яменском сельском поселении, в пяти минутах езды от города. Месторасположение сочетает в себе близость суперрегионального объекта - Сити-парка ''Град'' (более 270 магазинов одежды и обуви, 30 ресторанов и кафе, 10 продовольственных магазинов). А также природных территорий - лесного массива, озер и реки Дон. ЖК ''Финский квартал'' — это кирпичное домостроение с монолитным плитным фундаментом под каждой секцией. Это одно из самых надежных и современных решений строительства. В каждой секции — достаточное количество кладовых помещений, которые возможно приобрести отдельно. Подъезды сквозные, со стороны двора вход выполнен на нулевом уровне, что создает безбарьерную среду. На входах — обязательные грязезащитные решетки. Качественные бесшумные лифты с большой грузоподъемностью (1000 кг). Колясочные для хранения детского транспорта. На территории жилого комплекса можно жить полноценной загородной жизнью: заниматься спортом, читать в гамаке, гулять около пруда в собственном сквере, жарить мясо на площадке для барбекю. В ЖК ''Финский квартал'' использована концепция ''двор без машин'', делающая двор максимально безопасным для детей, полностью свободным от припаркованных авто. Для автолюбителей реализована высокая обеспеченность парковочными местами. Для велолюбителей предусмотрены велодорожки, соединяющие объекты комплекса. В каждом дворе три зоны детская, активная и места для отдыха. В детской части современные развивающие игровые комплексы для детей различных возрастов. Территория квартала огорожена по периметру. Машино-места для парковки расположены по периметру жилого комплекса. Подъезды и периметр жилых домов оборудованы системой видеонаблюдения. На подъездах установлены видеодомофоны, в квартирах аудиотрубки, которые при желании жители могут заменить на видеотрубку. За жилым комплексом территориально закреплены социальные объекты: детский сад МКДОУ Яменский ''Солнышко'' на 203 места, детский сад МКДОУ Яменский ''Рождественский'' на 220 мест и новая школа МКОУ Яменская СОШ на 1100 мест, к которой детей возит школьный автобус.
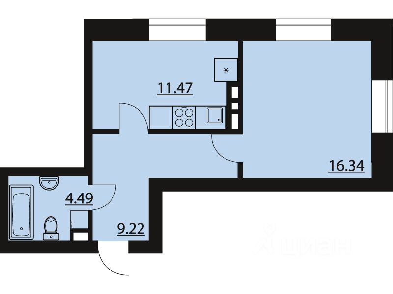
31 м2
2 / 10 этаж
Кирпич - монолит
- Показать контакты
- Добавить в избранное
31 м2
2 / 10 этаж
Кирпич - монолит
5 068 210
162 703 /м2
Новостройка,
дом сдан
дом сдан
