3-к, Урицкого, 137 Показать на карте
Центральный район
Воронеж
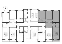
Код объекта: 800869. Выбирайте свою квартиру в ЖД Урицкий! Жилой дом Урицкий расположен на пересечении улиц Урицкого и Свердлова. В жилом комплексе будет сформирована уникальная среда, настоящее комьюнити, в котором будет место для собственных интересов и увлечений и в то же время — для гармоничного общения с другими людьми. Дом красивый и заметный внешне. Архитектурная выразительность здания достигается ритмичным рисунком контрастных декоративных элементов с гармоничным сочетанием коричневого, красного и бежевого цветов. 25 этажей 2 подъезда 7 квартир на этаже, 336 этажей в доме квартиры 1К, 2К, 3К и европланировки 3 лифта ( 2 пассажирских и один грузовой) просторная наземная парковка комфортный подземный паркинг Характеристики постройки: Наружные стены фасада трехслойные (газосиликатные блоки толщиной 300 мм, слой утеплителя толщиной 120 мм из минераловатных плит, навесной композитный фасад на подсистеме типа алюкобонд) Цоколь керамогранит Оконные переплеты ПВХ Витражи- алюминий Навесы входных групп металлокаркас Ограждающие элементы алюминий Межквартирные перегородки- пазогребневая плита 100 мм У дома спроектирована дворовая территория с авторским озеленением, игровыми и спортивными площадками и зонами отдыха. В пешеходной доступности от жилого комплекса находятся образовательные и социальные учреждения, магазины, аптеки. Хорошая транспортная развязка. Проехать несколько остановок на общественном транспорте - и вы в самом центре Воронежа.
96 м2
17 / 25 этаж
Монолит
- Показать контакты
- Добавить в избранное
96 м2
17 / 25 этаж
Монолит
13 648 800
141 000 /м2
Новостройка
