Универсальное помещение
20-летия ВЛКСМ, 54а Показать на карте
20-летия ВЛКСМ, 54а Показать на карте
Центральный район
Воронеж
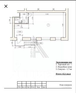
Помещение в ТЦ ''Петровский Пассаж'' площадью 123 кв.м сдается на 1м этаже возле центрального входа!ОТ СОБСТВЕННИКА. Без комиссии. ГЛАВНОЕ ПРЕИМУЩЕСТВО: Помещение расположено на 1м этаже прямо напротив главной входной группы! Возможна аренда как всего пространства (123 кв.м), так и деление площади на два автономных помещения (примерно по 60 кв.м) с организацией отдельных входов. ТЕХНИЧЕСКИЕ ХАРАКТЕРИСТИКИ:- Есть техническая возможность подведения МОКРОЙ ТОЧКИ прямо в зал (идеально для бьюти-сферы, общепита, медицинских услуг или шоурума)- Современные системы вентиляции, кондиционирования и пожаротушения- Круглосуточная охрана ''Петровский Пассаж'' — это СТАТУСНАЯ локация в самом сердце Воронежа. Внутри ТЦ развитая инфраструктура: подземный и наземный паркинг, фитнес-центр, отель, рестораны и бизнес-центр, сферы услуг и магазины.Чтобы обсудить условия деления площади и договориться о просмотре пишите/звоните брокеру по коммерческой недвижимости: ВЕРТЬЯНОВОЙ ДАРЬЕАрт. 135989593
123 м2
- Показать контакты
- Добавить в избранное
123 м2
116 850 /мес.
950 /м2
