Если цена в объявлении изменится, мы сразу сообщим вам об этом на электронную почту.
Нажимая «Подписаться», вы соглашаетесь с правилами.
продам дом, Новая Усмань6 900 000 ₽
24 дек
Дата публикации объявления
Обн. 23 мар
Дата обновления объявления
6
Количество просмотров (+ просмотры за сегодня)
77 528 ₽/м²
Чистая продажа
Термин "Чистая продажа" означает, что в квартире никто не прописан или
есть куда выписаться и вывезти вещи. Это лучший вариант для покупателя.
Вероятность срыва сделки минимальна.
Этажей1
Площадь участка6 соток
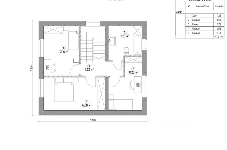
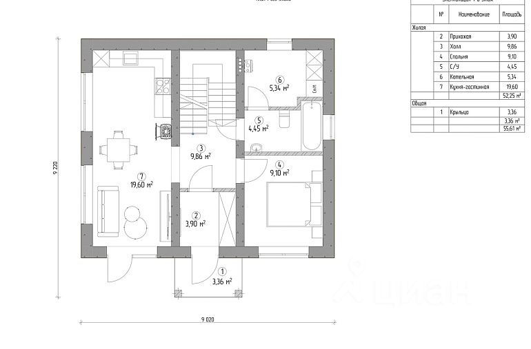
Общая площадь89 м2
ЭлектричествоЕсть
Газоснабжениецентральное
Застройщик продает участок 5,3 соток с подрядом на строительство дома 76 кв.м. + терраса 14 кв.м.
Школа, детский сад и автобусная остановка не далеко. Очень живописное место. На участке смешанный лес.
Цена за дом с предчистовой отделкой, подключением коммуникаций и стоимостью участка составляет 6900 000 руб.
Качественные сертифицированные материалы. Строительство с соблюдением стандартов и предоставлением гарантий.
Электричество подключено. Чистая вода из скважины. Канализация - септик. Материал постройки дома: газосиликатный блок D500 толщиной 30 см + утеплитель с фасадной штукатуркой. Всего толщина стены 43 см. Внутренняя отделка: ровная гипсовая штукатурка.
Застройщик продает участок 5,3 соток с подрядом на строительство дома 76 кв.м. + терраса 14 кв.м.
Школа, детский сад и автобусная остановка не далеко. Очень живописное место. На участке смешанный лес.
Цена за дом с предчистовой отделкой, подключением коммуникаций и стоимостью участка составляет 6900 000 руб.
Качественные сертифицированные материалы. Строительство с соблюдением стандартов и предоставлением гарантий.
Электричество подключено. Чистая вода из скважины. Канализация - септик. Материал постройки дома: газосиликатный блок D500 толщиной 30 см + утеплитель с фасадной штукатуркой. Всего толщина стены 43 см. Внутренняя отделка: ровная гипсовая штукатурка. Система отопления: теплый пол + радиаторы, двухконтурный настенный котел. Разводка электричества по всему дому. Крыша металлочерепица или мягкая кровля, утепление минватой. Качественные окна с двойным стеклопакетом и напылением. Участок ровный, не в зоне подтопления.
Возможна поэтапная оплата.
Возможна ипотека!!! Аккредитованный застройщик. Дополнительные расходы на ипотеку не берутся. Возможен трейд ин - обмен на вашу недвижимость.