Дом, Воскресенская, 11 Показать на карте
Новая Усмань
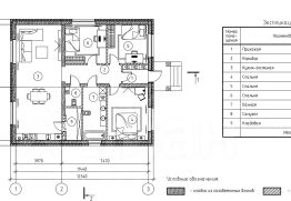
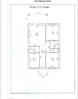
ПРОДАЖА ОТ ФИЗИЧЕСКОГО ЛИЦА, НЕ ПОДХОДИТ ПОД СЕМЕЙНУЮ ИПОТЕКУ.Продается новый современный дом в Новой Усмани на улице Воскресенская.Дом построен из качественных материалов и с соблюдением всех технологий. Стены из газосиликата 300 мм, облицованы керамическим кирпичом, фундамент глубиной 1,2 м ленточный с применением металлической арматуры 12 мм. Кровля - мягкая черепица.Площадь дома 95,7 кв.м, 3 светлые комнаты по 10,9 кв.м, 11,9 кв.м, 14,9 кв.м, просторная кухня-гостиная 34,1 кв.м с выходом на открытую террасу, совмещенный санузел, большой широкий холл, и выложена входная группа.Дом с предчистовой отделкой: стены оштукатурены, подготовлены под поклейку обоев, на полу чистовая стяжка, окна пластиковые с двухкамерными стеклопакетами, радиаторы отопления во всех помещениях, а также на кухне, в холле и в санузле система водяных теплых полов, входная дверь металлическая .Подключены все коммуникации: газовое отопление с двухконтурным настенным котлом, электричество, индивидуальная скважина 50 м с погружным насосом и станцией, для удобства обслуживания скважина на улице. сливная яма на 3 кольца диаметром 1,5 м.Земельный участок прямоугольной формы, удобный по фасаду, общая площадь 8 соток. Подъездные пути хорошие. В селе есть вся инфраструктура: школа, детский сад, магазины, остановка, для отдыха река с пляжем.Подходит под все виды оплаты, в том числе ипотеку, маткапитал и прочее. Оформляем ипотеку на выгодных условиях. Работаем с ЛЮБЫМИ жилищными сертификатами. Помогаем реализовать не проданное жилье покупателя.По техническим причинам Вы можете не дозвониться с первого раза. Перезвоните, пожалуйста, или напишите в чат. Мы на связи 24/7 и ждем Вашего звонка.
95 м2
1 этаж
Кирпич
- Показать контакты
- Добавить в избранное
95 м2
1 этаж
Кирпич
6 500 000
67 921 /м2
