Дом, Сосновая, 11/1 Показать на карте
Новая Усмань
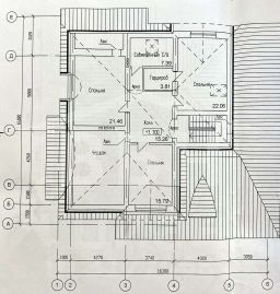
Продается дом в спальном районе в одном из самых экологически чистых и востребованных мест. Село Новая усмань, микрорайон РАДУГА. Дом построен профессиональным строителем с соблюдением строительных норм и правил и с использованием современных и качественных материалов. - стены из газосиликата + облицовочный кирпич - фундамент ленточный армированный - окна: тройной стеклопакет - скважина 38 метров - канализация два кольца - в санузле плитка и напольная плитка по всему дому - теплый пол одним контуром по всему дому + вывод под батареи (для очень теплолюбивых) - отопление: электрокотел (оплата за электричество низкая, это выгодно) - газ проложен вдоль участка, при желании можно подключить - современная входная дверь с терморазрывом, также установлены межкомнатные двери - стены прошпаклеваны и подготовлены под покраску - натяжной потолок + освещение В доме три спальни, просторная прихожая и великолепная кухня-гостиная. В шаговой доступности расположены: остановка, школа, детский сад, спортивный комплекс с бассейном, аптеки, сетевые магазины и прочее необходимое для комфортной жизни. Участок правильной прямоугольной формы. Площадь участка позволяет сделать пристройку к дому в виде террасы перед домом и за домом достаточно места для бани, хозпостройки, мангальной зоны, либо что-то другое. Также есть место для гаража или парковки. Кадастровый номер дома 36:16:5400003:3835. Кадастровый номер участка 36:16:5400003:3373. Вся сумма в договоре. ДОМ ПОДХОДИТ ПОД СЕМЕЙНУЮ ИПОТЕКУ!!!
87 м2
1 этаж
Кирпич
- Показать контакты
- Добавить в избранное
87 м2
1 этаж
Кирпич
6 900 000
78 677 /м2
