Коттедж, Полевая Показать на карте
Чертовицы
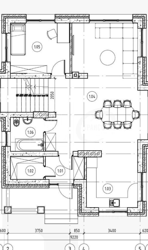
Предлагаю вам купить дом в пригороде Воронежа: с Чертовицы Рамонского района по выгодной цене за квадратный метр без учёта стоимости участка!Двухэтажный коттедж с панорамным остеклением отличный вариант для семьи, в которой любят много солнечного света, свежий воздух, ценят тишину, уют и гармонию.Общая площадь 191,10 кв.м. по ЕГРН, кухня-гостиная 42 кв. м., 4 жилые комнаты, 2 сан.узла.Дом 2023 года, строили для себя. Качество вы сможете оценить при просмотре. ПЛАНИРОВКА продумана до мелочей с учетом потребностей современной семьи: 1 этаж:- Вас встречает светлый холл, где грязная зона изолирована и есть место для зоны хранения вещей- современная кухня-гостиная 42 кв.м. с выходом на террасу- универсальная комната 18 кв.м.: гостевая или кабинет для работы из дома- гостевой сан.узел - помещение 5,8 кв.м. (здесь расположен котел) можно использовать как хозяйственную комнату /прачечную- красивая с удобным шагом монолитная лестница на 2й этаж2 этаж:- три просторные комнаты: спальня родителей 22 кв.м. и две детские 18 и 19 кв.м.- санузел с окном 9,7 кв.м.- выход на вторую открытую террасу 17,5 кв.м., где можно оборудовать лаундж-зону для отдыха. О ДОМЕ:*надежный фундамент глубиной 1,8 м*стены: 1,5 кирпича + утепление 150 мм + фасадная штукатурка*кровля: плоская на мембране с утеплением 200 мм*высокие потолки 3 мж*ж/б перекрытия*высококачественное панорамное остекление *энергосберегающие стеклопакеты повышенной прочности, установленные в алюминиевый профиль, которые удерживают тепло внутри помещения зимой и защищают от солнечной жары летом*откатные ворота*установлена система охраны*забор по всему периметру *АСФАЛЬТ до домаКОММУНИКАЦИИ введены в дом, установлены счетчики: водопровод центральный, электричество 380 В, газ, автономная канализация септик с переливом. Есть возможность подключения интернета Ростелеком.ОТДЕЛКА: -внутренние стены: кирпич-пол: сухая стяжка-выполнена разводка воды и канализации-котел настенный двухконтурный -смонтирована вся система отопления: теплый пол по всему 1 этажу и в сан.узле на 2м этаже -установлены радиаторы на 2м этажеОТОПЛЕНИЕ ЗАПУЩЕНО, дом топится всю зиму! Вы сами можете создать свой уникальный интерьер, выбрать мебель и продумать заранее до отделки: розетки, свет, хранение, инженерные решения. УЧАСТОК ровный, прямоугольный 825 кв.м. - вы можете реализовать любые ландшафтные идеи.ИНФРАСТРУКТУРА: с. Чертовицы расположено рядом с дорожной развязкой на М4 - до Воронежа ходит автобус, остановка в 10 минутах пешком от дома, на авто до центра города 30 минут.* В пешей доступности в селе новая школа, детский сад, аптека, магазины Магнит, Пятерочка, Озон* АЗС, ресторанный комплекс* Рядом лес, река, спортивно-оздоровительные комплексы, бассейн санаторияСобственник один. Обременений нет. Быстрый выход на сделку.Дом продаётся от физического лица. Возможна покупка с использованием материнского капитала, ипотеки.Рассмотрим покупателя с собственной непроданной недвижимостью. Звоните или пишите сообщения, отвечу на ваши вопросы, организую показ.
191 м2
2 этажа
Кирпич
- Показать контакты
- Добавить в избранное
191 м2
2 этажа
Кирпич
12 900 000
67 504 /м2
