Дом, Мира, 20б Показать на карте
Новая Усмань
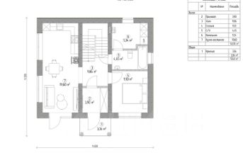
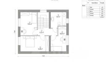
Предлагаю к продаже современный жилой дом, расположенный на земельном участке 10 соток в центре Новой Усмани.На участке есть все необходимое для комфортной семейной жизни. Удобный подъезд к дому, гараж на 2 парковочных места с автоматическими воротами. Двор в тротуарной плитке, баня, просторная беседка, септик с системой перелива. На придворовой территории растут фруктовые и декоративные растения. Для ухода за садовой зоной сделана отдельная скважина для полива.Общая площадь дома 145 кв.м.Дом светлый, каждое окно с видом на сад. Высота потолков 2,8м.1 этаж (основные жилые помещения): прихожая, бойлерная - постирочная-кладовая, просторный холл, кухня-столовая, гостиная, детская комната, спальня, туалет, ванная комната.В доме есть хозяйственная комната, где расположены: газовая колонка, отопительный котел, стиральная машина, стеллажи для хранения.На мансардном этаже 2 комнаты, которые дают возможность для реализации собственных проектов или же размещения гостей.Мебель и технику оставляем по договоренности.Инфраструктура. В пешей доступности (5-20 мин ходьбы по освещенным благоустроенным тротуарам):- торговый центр ''Аксиома'', продуктовый рынок,,- остановка общественного транспорта ''Почта'',- школы,- спортивные секции и художественные кружки для детей,- спортивные залы,- детский сад,- парк ''Березки'' и ''Дубрава'', Аллея Славы,- пляж,- современные детская и взрослая поликлиника.Цену обсуждаем при просмотре.Для получения дополнительной информации или записи на просмотр просто напишите сообщение в чат илипозвоните( возможны проблемы со связью).Для более подробного описания дома есть видеообзор, отправлю по запросу.Возможен покупатель со своим не проданным жильем!
115 м2
2 этажа
- Показать контакты
- Добавить в избранное
115 м2
2 этажа
14 890 000
129 478 /м2
