Дом, Кольцова, 38 Показать на карте
Перелешинское городское поселение
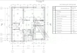
К Вашему вниманию представлен теплый и уютный дом для круглогодичного проживания. Просторный, светлый и очень чистый. Дом деревянный, обложен кирпичом. Все коммуникации заведены. Пластиковые окна, натяжные новые потолки. Погреб для заготовок с полками (люк на кухне).Ремонт сделан во всём доме. На территории земельного участка расположены: - сад с плодовыми дeрeвьями и ягодными кустарникaми. - огоpoд для вырaщивaния овoщeй и зелeни. - теплица для круглoгoдичнoгo выращивания растений. -сарай для хранения садового инвентаря и хозяйственных принадлежностей. -Времянка - большой погреб для хранения заготовок и овощей (люк во времянке) - гараж. Новая широкая улица, асфальт. Хорошие соседи. Благодаря удобному paспoлoжению дома, есть возможность жить в зеленой зоне и наслаждаться природой и свежим воздухом. Имеется заезд с обеих сторон земельного участка. Район прекрасно подходит для комфортной жизни: школа, детский сад, ДК, Пятерочка. Также рядом расположена река Верхняя Матренка с обустроенным пляжем и местами для ловли рыбы. Звоните и спешите на просмотр дома своей мечты!
76 м2
1 этаж
Кирпич
- Показать контакты
- Добавить в избранное
76 м2
1 этаж
Кирпич
3 900 000
50 847 /м2
