Дом, Медовка, 111 Показать на карте
Медовка
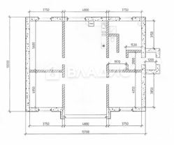
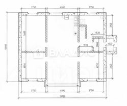
Код объекта: 1792343.Дом в деревне Медовка по выгодной ценеОписание объекта:Продаётся современный дом площадью 154 кв. м на участке в 12 соток по адресу: Воронежская область, Рамонский район, деревня Медовка, улица Генерала Белобородова, 111. Дом построен в 2024 году из газобетонных блоков, перекрытия — деревянные, кровля — металлочерепица. Высота потолков составляет 3 метра, что придаёт пространству дополнительный простор и свободу.Преимущества:- Выгодная цена: идеальное соотношение цены и качества, выгодное предложение на рынке недвижимости.- Удобное расположение: всего 15 км до города, лёгкий доступ к транспортным магистралям, близость к природе и свежим воздухом.- Просторная планировка: три комнаты с общей площадью жилой части 48,51 кв. м, просторная кухня 42,7 кв. м, два санузла (раздельный и совмещённый).- Качественный ремонт: состояние white box, готовое к реализации ваших дизайнерских идей.- Коммуникации: электричество, водоснабжение (скважина), канализация, газ — всё подключено и готово к использованию.- Дополнительные удобства: индивидуальный котёл, возможность круглогодичного проживания.Не упустите свой шанс приобрести дом по выгодной цене!Позвоните мне, чтобы узнать больше и договориться о просмотре!
154 м2
1 этаж
- Показать контакты
- Добавить в избранное
154 м2
1 этаж
9 300 000
60 390 /м2
